会社情報
松下地所ホーム株式会社
茨城県知事免許(9)第4314号
- 茨城県鉾田市大蔵1488-1
- 電話 / 0291-39-7541
- FAX / 0291-39-5081
- 時間 / AM9:00~PM5:00
- 定休日 / 毎週木曜日
- e-mail / info@folkland.biz
鉾田市大蔵中古住宅 商談中
陽当たりの良い南向き2階建!広い駐車スペースの他、南庭は家庭菜園もできちゃいます!!
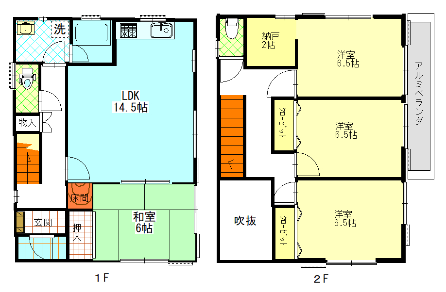
【価格】998万円(税込)4LDK
ファミリーマート鉾田大蔵店 700m
しゃぼん大洋駅前店(コインランドリー) 850m
鹿島臨海鉄道大洋駅 890m
鉾田市役所大洋支所 1100m
水戸信用金庫大洋支店 1100m
たきもとクリニック 1400m
カスミ・コメリ・ヤックスドラック 2000m
しゃぼん大洋駅前店(コインランドリー) 850m
鹿島臨海鉄道大洋駅 890m
鉾田市役所大洋支所 1100m
水戸信用金庫大洋支店 1100m
たきもとクリニック 1400m
カスミ・コメリ・ヤックスドラック 2000m
| 取引形態 | 売主 |
|---|---|
| 土地権利 | 所有権 |
| 所在地 | 鉾田市大蔵1373-5 |
| 交通 | 鹿島臨海鉄道 大洋駅 |
| 土地面積 | 330.22㎡(99.89坪) |
| 私道持分 | 無し |
| 建物構造 | 木造スレート葺2階建 |
| 建物面積 | 118㎡(35.69坪) |
| 築年数 | 平成10年4月築 |
| 間取り | 4LDK |
| 都市計画法 | 未線引地域 |
| 用途地域 | 無指定 |
| 建ぺい率 | 60% |
| 容積率 | 200% |
| 地目 | 宅地 |
| 地勢 | 平坦 |
| 現況 | 空き |
| 引渡し可能日 | 即引き渡し可能 |
| 道路状況 | 北東5.1m公道 北西6.3m公道 |
| 設備 | 設備 電気-東京電力 ガス-LPガス 水道-井戸 トイレ-浄化槽(合併) |