鉾田市、鹿嶋市の不動産なら松下地所ホーム株式会社にご相談ください。

松下地所ホーム株式会社

自然の中で生きていくこと、
快適な生活を楽しむこと、
二つの融和を目指したフォークランド

ブログ

2026年 あけましておめでとうございます

2026年1月6日

2026年 あけましておめでとうございます

2026年  明けましておめでとうございます。 平素はご愛顧を賜わり、厚く御礼申…

続きを読む

ブログ一覧へ

会社情報

松下地所ホーム株式会社

松下地所ホーム株式会社
茨城県知事免許(9)第4314号

  • 茨城県鉾田市大蔵1488-1
  • 電話 / 0291-39-7541
  • FAX / 0291-39-5081
  • 時間 / AM9:00~PM5:00
  • 定休日 / 毎週木曜日
  • e-mail / info@folkland.biz

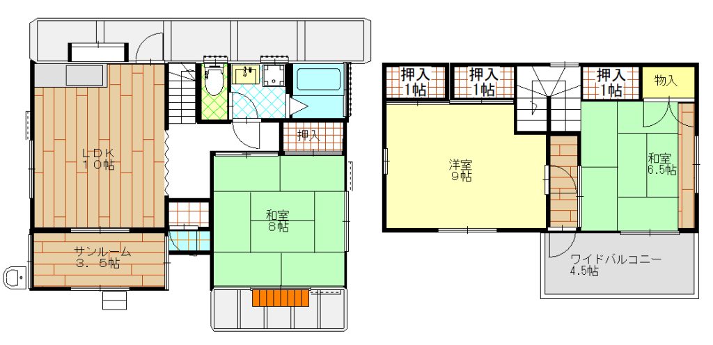
鉾田市二重作中古住宅 成約済み

ワイドバルコニーから自然を満喫!ぽかぽか陽ざしが差し込む全室南向き!!

【価格】480万円(税込)3LDK

セブンイレブン鉾田大竹店 2700m
県立鹿島灘海浜公園・大竹海水浴場 2800m
新宮郵便局 3800m
セイミヤ安房店(スーパー) 4400m
カスミ大洋店(スーパー)・コメリ大洋店(ホームセンター)
ヤックスドラッグ鉾田店(ドラッグストア) 4600m)
取引形態 売主
土地権利 所有権
所在地 鉾田市二重作1658-11
交通 鹿島臨海鉄道 北浦湖畔駅
土地面積 166.61㎡(50.39坪)
私道持分 無し
建物構造 木造スレート葺き2階建て
建物面積 85.28㎡(25.79坪)
築年数 平成3年12月
間取り 3LDK
都市計画法 未線引地域
用途地域 無指定
建ぺい率 60%
容積率 200%
地目 宅地
地勢 平坦
現況 空き
引渡し可能日 即引き渡し可能
道路状況
設備 設備 電気-東京電力
ガス-LPガス
水道-井戸(自家)
トイレ-浄化槽

トップページへ